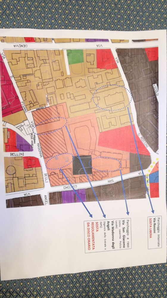
Il disco orario approda al quartiere ex Ursus. La giunta comunale ha infatti deliberato una riforma dei regimi di sosta che interesseranno tutti i parcheggi sorti con la riqualificazione dell’area che ospitava la gloriosa fabbrica di scarpe famose per la suola in gomma. Tre le aree che diventeranno a disco orario. La più grande è quella con ingresso da via San Giovanni, situata sul retro della caserma di polizia locale e davanti all’università del tempo libero. C’è poi il piccolo parcheggio antistante l’agenzia delle entrate (accesso da via Madonna degli Angeli) e infine l’area ex Cnr (accesso da via Pisani).
In tutte queste aree, finora a sosta libera, verrà applicato un disco orario con limite di due ore dalle 8.00 alle 12.00 e dalle 14.00 alle 18.00. Le limitazioni saranno in vigore soltanto da lunedì a venerdì, mentre il sabato e i festivi si tornerà alla sosta libera. Il disco orario sparisce invece dal parcheggio interrato di via Rossini. Uno spazio ricavato nei sotterranei di un condominio, che, tramite un cancelletto pedonale, collega al parcheggio di via Pisani. Dalle prossime settimane si trasformerà in un parcheggio a sosta libera, fermo restando che gli orari di apertura rimarranno alle 7.00 alle 20.00 festivi compresi (come da accordi con l’amministrazione condominiale).
“Il parcheggio di via Rossini, aperto ormai da quasi tre anni, è sottoutilizzato”, ha spiegato l’assessore alla viabilità Luigi Pigola illustrando le novità in una conferenza stampa: “Con la sua trasformazione da disco orario a sosta libera intendiamo incentivarlo, mentre per quanto riguarda i parcheggi in superficie crediamo che il disco orario sia una necessità. In quell’area, oltre al comando di polizia locale, si trovano l’agenzia delle entrate, l’università del tempo libero e diversi studi medici. Sono tutte realtà per cui è opportuno garantire una certa turnazione delle vetture in sosta”.




