Si parla ancora a Gropello Cairoli della sistemazione di un’ area di 6mila metri quadrati che si trova in centro storico conosciuta come ecomostro: una lottizzazione residenziale della fine degli anni Novanta, iniziata e mai per il fallimento dell’impresa.
Il comune di Gropello ha definito il bando per la riqualificazione dello slargo vicino al cantiere.
Grazie ad un contributo statale di 50mila euro, finalizzato a progetti di sviluppo territoriale e adeguamenti per la messa in sicurezza del patrimonio pubblico, ci sarà poi l’abbattimento del muro di cinta e il rifacimento dell’incrocio via Beccari-via Battisti che acconsentirà una miglior viabilità intorno all’area.
Il risanamento di questa zona è al centro dell’interesse della cittadinanza e del Comune.
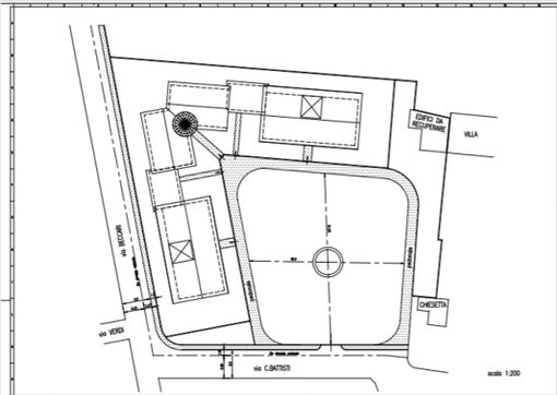
Il progetto tecnico prevede la realizzazione di una piazza nuova e moderna che sorgerà vicino al centro del paese, a pochi metri da Villa Cairoli da adibire a parcheggio. Le opere partiranno a breve termine














