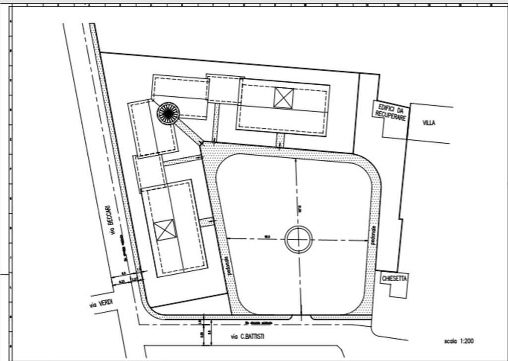
A Gropello si parla della realizzazione di un nuovo slargo – parcheggio nella parte del centro storico tra via Cesare Battisti e via Beccari. Il Comune ha deliberato l’impiego in prima istanza di 50.000 euro derivanti da fondi speciali stanziati dallo Stato per interventi riqualificanti di realtà pubbliche.
Il programma delle opere prevede, la pulizia dell’area di demolizione del muro di cinta sulla via Battisti, la demolizione del fabbricato esistente all’interno dell’area di realizzazione del nuovo marciapiede lungo la via Battisti, l’allargamento della via Battisti, posa allacciamenti alle reti acqua gas e luce recinzione del nuovo piazzale al fine di rendere sicura ed agibile l’area al pubblico pulizie finali e smobilizzo cantiere. L’area dei lavori è stata oggetto di piano di recupero residenziale nel 2005. La lottizzazione non è poi mai stata terminata per questioni legati al fallimento di quell’immobiliare ed il piazzale antistante non è stato pavimentato.
Il comune si è fatto carico di completare gli interventi per rendere agibile e fruibile il piazzale antistante la via Battisti i lavori prevedono la demolizione di 1000 metri cubi di manufatto sull’esistente via Battisti, l’allargamento della sede stradale per 1,7 metri e la creazione di marciapiede di larghezza 1,5 metri con cordoli in pietra naturale e finitura con massetti autobloccanti.













